ライオンズマンション三ッ沢公園 702号室神奈川県横浜市西区北軽井沢8-2にある3DK売マンション分譲一室【価格】2,980万円【交通】JR東海道本線『横浜』駅 徒歩17分 | 横浜エリアの賃貸管理・不動産売買・相続のご相談なら株式会社アルプス建設
ライオンズマンション三ッ沢公園 702号室
☆売・中古マンション★ライオンズマンション三ッ沢公園 702号室 ☆
◇ビッグターミナル・横浜駅徒歩17分
◇閑静な住宅街・高台に立地し、陽当たり&住環境良好!
★2025年9月内装リフォーム済み★
・システムキッチン 新品交換
・洗髪洗面化粧台 新品交換
・クロス全面張替
・木部各所塗装
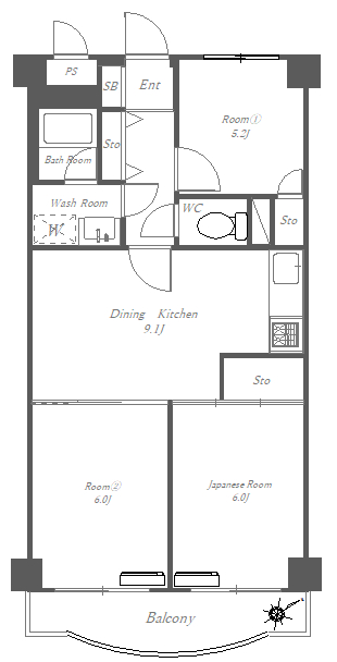
・専有面積54.57㎡
◇ビッグターミナル・横浜駅徒歩17分
◇閑静な住宅街・高台に立地し、陽当たり&住環境良好!
★2025年9月内装リフォーム済み★
・システムキッチン 新品交換
・洗髪洗面化粧台 新品交換
・クロス全面張替
・木部各所塗装
・専有面積54.57㎡
| 物件名 | ライオンズマンション三ッ沢公園 702号室 | 種別 | 売マンション分譲一室 |
|---|---|---|---|
| 住所 | 神奈川県横浜市西区北軽井沢8-2 | ||
| 交通 | JR東海道本線『横浜』駅 徒歩17分 | ||
| 価格 | 2,980万円 | 間取り | 3DK |
|---|---|---|---|
| 建ぺい率/容積率 | 完成(築年月) | 昭和60年8月 | |
| 建物面積 | 6286.75㎡ | 敷地面積 | 3488.04㎡ |
| 用途地域 | 第一種住居地域 | 土地権利 | 所有権 |
| 私道負担/道路 | 現況/引渡 | 空室/即時 | |
| 取引番号 | 建築確認番号 |
| 価格 | 2,980万円 |
|---|---|
| 間取り | 3DK |
| 建ぺい率/容積率 | |
| 完成(築年月) | 昭和60年8月 |
| 建物面積 | 6286.75㎡ |
| 敷地面積 | 3488.04㎡ |
| 用途地域 | 第一種住居地域 |
| 土地権利 | 所有権 |
| 私道負担/道路 | |
| 現況/引渡 | 空室/即時 |
| 取引番号 | |
| 建築確認番号 |

営業時間:9:30~17:30 定休日:水曜日
Copyright (C) alpskensetsu All Rights Reserved.
















